Inproin. Ingeniería y Proyectos

Polideportivo Quel - La Rioja

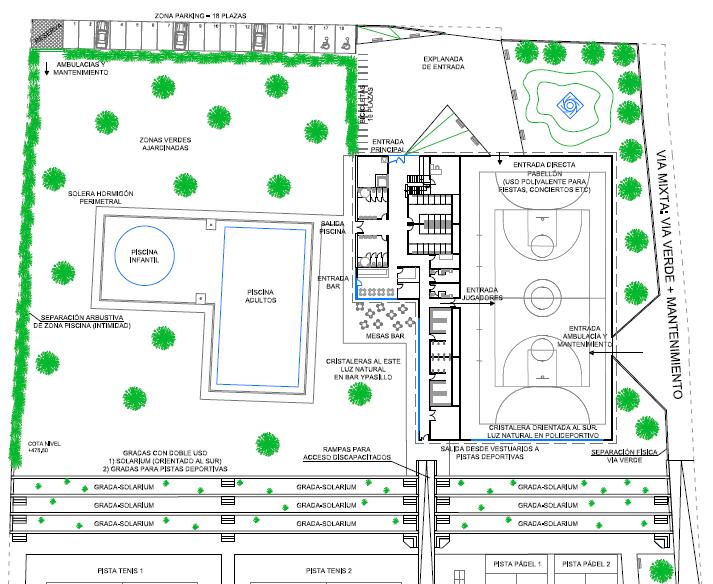
Anteproyecto

Organización de conversaciones ciudadanas, desarrollo de programa de necesidades, diseño de anteproyecto constructivo y de instalaciones para concurso de licitación de proyecto de ejecución Polideportivo Quel - La Rioja. No adjudicado.
<< Volver
Gestión
Integral Tu proyecto de principio a fin
Contacta
con nosotros Conoce nuestras capacidades

Últimas noticias

Ver todas las noticias >>

Más Proyectos: