Inproin. Ingeniería y Proyectos

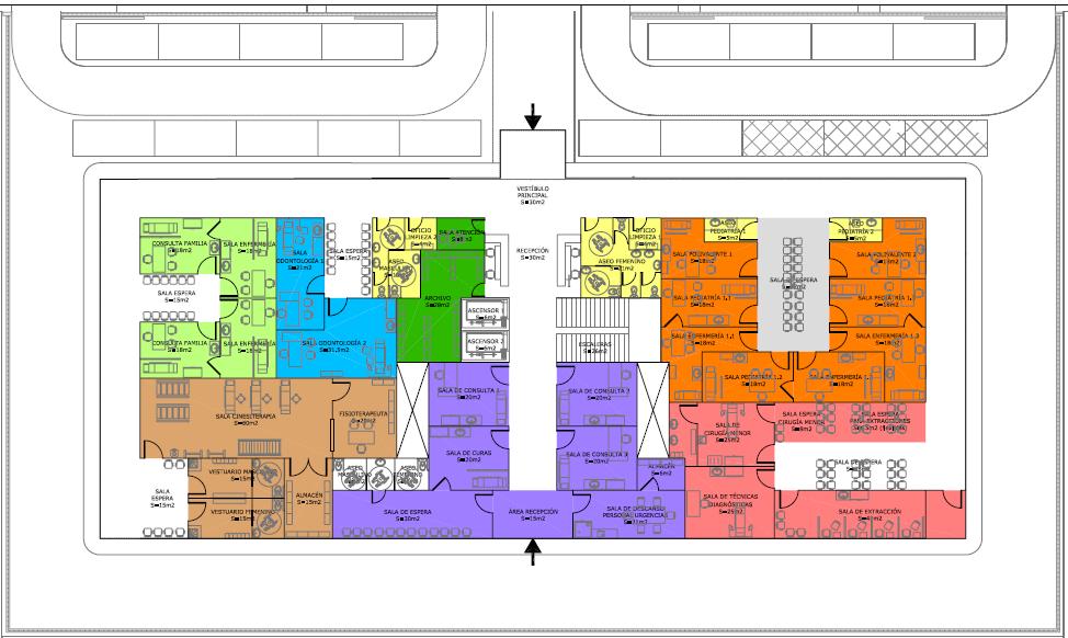
Centro Salud La Guindalera

Anteproyecto

Anteproyecto constructivo y de instalaciones para concurso público de servicios de arquitectura e ingeniería para edificación de Centro de Salud en el área "La Guindalera" de Logroño. Desarrollo urbanístico, estructural y funcional. Concurso no adjudicado.
<< Volver
Gestión
Integral Tu proyecto de principio a fin
Contacta
con nosotros Conoce nuestras capacidades

Últimas noticias

Ver todas las noticias >>

Más Proyectos: